HOUSE
자연을 향한 동경 청라 삼대가 함께 사는집
- 관리자 오래 전 2025.11.14 11:12 house 인기
-
696
0














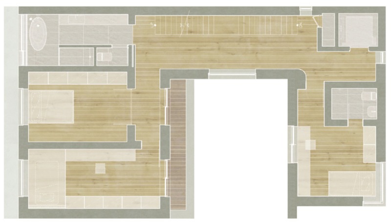
HOUSE PLAN
대지위치 : 인천광역시 서구 청라동
| 대지면적 : 451.5㎡(136.58평)
| 건물규모 : 지상 3층
| 거주인원 : 5명
| 건축면적 : 132.34㎡(40.03평)
| 연면적 : 293.91㎡(88.91평)
| 건폐율 : 29.31%
| 용적률 : 65.1%
| 주차대수 : 2대
| 구조 : 기초 - 철근콘크리트 매트기초 / 지상 – 철근콘크리트 / 지붕 – 철근콘크리트 위 무근콘크리트 위 우레탄방수
| 단열재 : 수성연질폼 120㎜ 발포, PF 보드
| 외부마감재 : 벽돌
| 담장재 : 현장제작 이페마감
| 창호재 : 이건 시스템창호 43mm
| 전기·기계·설비·토목 : 이안 건축사사무소
| 조경 : 그린브라더
| 에너지원 : 도시가스
| 내부마감재 : 벽, 천장 - 벤자민무어 도장마감 / 바닥 - 선일원목마루
| 욕실 및 주방 타일 : TOTO
| 수전 등 욕실기기 : TOTO, 이케이파트너스
| 주방가구 : 현장제작 + MDF 위 도장
| 조명 : 테크노케이블, LLP
| 계단재 : 원목마루
| 도어 : 현장제작 + 위드지스 슬라이딩 도어
| 데크 : 이페
| 시공 : 평안건설, 100A associates
| 설계 : 100A associates 02-919-9135 100a-associates.com
- 이전글보통 사람들의 디자인 주택을 짓다 / 홈스타일토토 임병훈 건축가2016.06.15
- 다음글닿는 시선마다 풍성하게 세종 다온:당2025.11.05
댓글목록
등록된 댓글이 없습니다.